THE DELTA SHELTER

Master Design Studio: Form Studies

Finding Shelter in the Open Bunker. Focusing on the aspects of aesthetics, perception and materialisation of architectural compositions.

The Delta Shelter

PROJECT INFO

COURSE

Master Architectural Design Studio: Form Studies, April 2022 - June 2022

SITE

Research House, de Boschplaat, Terschelling, the Netherlands

SKILLS

Researching & Site Analysis, Sketching & Drawing, Watercolouring, Form Studies, Modeling

PROGRAMME

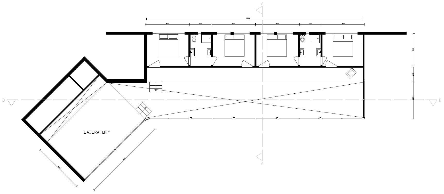
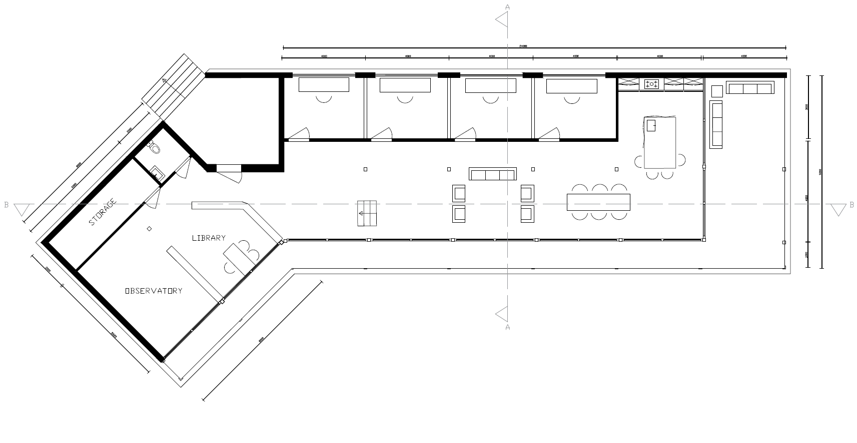
Kitchen, living room, four workspaces, four bedrooms, two bathrooms, library, observatory, laboratory, storage.

SUMMARY

The Delta Shelter is a small-scale refuge, located in a Delta Environment on the island of Terschelling. This project offers temporary stays to tourists, artists and/or researchers and serves as a case in the exploration of the inspiring and challenging condition of this dynamic, natural site on the border between water and land. The task is characterised as a play between nature, landscape, and architecture, explored through artistic research- and design methods.

Model water

RESEARCH

SHELTER

In the protected area of Terschelling, sheltering is observable everywhere. From this illustrated study, further issues arise that can be addressed in the design process. In the development of a shelter for humans, it is crucial to contemplate how such a construction can avoid impacting, intruding upon, or damaging the intricate ecosystem of shelters established by wildlife. A good design will instead provide further sheltering for wildlife and humans alike. And like all shelters, it will be temporary, resilient and low tech.

Watercolour water

WATER

This vivid experience was textually visualised during a visit to the Boschplaat, embodying the connection with water and the yearning for the sea’s embrace. Water holds a magical, restorative quality. Essential to life, our bodies are primarily composed of water, and deprivation leads to our demise. Beyond it’s life-sustaining property, water offers a meditative sanctuary, a source of peace. Its varying colours, the sunlight’s sparkle, and its perpetual motion captivate endlessly. The waves, each unique yet rhythmically consistent, and the infinite horizon provide a haven of one’s thoughts. Inspired by this sensation of freedom and tranquillity, I am motivated to continue my design process.

SHELTERING LANDSCAPE

Reflecting on the Boschplaat and the theme of shelter, it swiftly becomes apparent that this place is naturally protected by the dunes and the dykes flanking it on both sides.

AWAKENING BY THE SEA

You wake up. The sunlight shines through the window accompanied by the melodious chirping of birds. You get up, put on your bathrobe and slippers, proceeding through the glass door of your bedroom. A gentle, warm breeze caresses your skin. Eyes closed, you immerse yourself in the ambient fragrances and sounds, discerning the scent of seawater, and, if you listen very carefully, the distant call of the sea. Venturing towards it, you traverse the rough yet inviting and soft dunes. Looking back reveals a striking contrast: the flat land with its different layers, colours, vegetation, ranging from coarse and prickly to supple, tall grasses, against the backdrop of the steep dunes you now navigate. These dunes, soft, precipitous, and white, seem to lead to an idyllic island, their cohesion maintained by the marram grass. The abrupt and unexpectedly rugged dune landscape, with its high steep cliffs, reminds you of an exotic country. Nearer, the wind-sculpted sand ribs become apparent. Refocusing on your destination, the murmurs of the ceaseless sea grow louder. The expansive, typical Dutch beach unfolds before you, sporadically adorned with poles and stray wood stumps. The boundless sea lies ahead and you realise that this is a different world than behind the dunes. There, the land is low, exuding tranquillity and safety, yet the landscape alters with every meter. You sprint along the beach into the sea, feeling the resistance of the cold, salty water against your feet, knees, and then your entire body. Closing your eyes and taking a deep breath, you dive, and in that moment, completely surrounded by water, your mind finds a brief respite. In this state, you are devoid of sensation, vision, sound, scent, taste, and thought. Just for a moment, nothing at all.

Watercolour vertical section dunes
Charcoal sketch bunker

BUNKER

Encountering a bunker on Terschelling. A bunker; among the initial considerations and possibly the most formidable illustration of a shelter. The sensation of being sheltered, whether inside or outside the bunker, is contingent upon the circumstances.

Bunker image 1
Bunker image 2

SELF-WRITTEN POEM

Poem
Route to location

FLEXIBILITY

As stated in my poem, the essence of shelter, to me, encapsulates a sense of safety. It is not about what you have around you, or how well your house is secured, it is about how you feel; it is rooted in one’s perception of security. The quintessential shelter manifests in any form that engenders a feeling of safety. Upon contemplating the concept of shelter, my initial thoughts gravitated towards a bunker. However, delving deeper into the notion reveals that safety within a bunker is not a given. One might find solace beside, in front of, or atop of it, contingent on external conditions. This reflection led me to redefine shelter as flexibility. Designing with adaptability in mind – able to conform to individual needs and environmental circumstances, aiming for optimal safety and comfort - culminates in the ideal shelter. Therefore, for me, shelter is fundamentally about the sensation of being secure, which is inherently emotional. Emotions can change due to external influences, so our shelters must adapt accordingly. Thus, I am committed to further exploring and designing the flexibility of spaces, with the objective of crafting the optimal sanctuary for researchers and artists.

Comparing flexible spaces. A minor alteration can effect a significant difference and engender an entirely distinct area. Flexibility aids in adapting to conditions, and possessing the capability to do so effectively may offer the utmost form of protection.

Flexible model
Flexible models Flexible model2

DESIGN

Model in landscape Watercolour landscape Watercolour route to location

MODELS & WATERCOLOURS

The foundational concept for the design was conceived during a visit to Terschelling. The captivating dunes, the connection to the sea, and an investigation into the essence of shelter informed the design process.

Through sketches, watercolours, and models, the environment was detailed. The expansive dunes and boundless spaces necessitated a design that complemented these elements.

The design is to be situated against a slope, offering the utmost form of protection. Conversely, the aspect of openness requires consideration. Here, one can thoroughly appreciate the landscape and become unified with nature.

Model location Watercolour location

FIGURE IN LANDSCAPE

The precise form of the design was determined through the use of small models within the landscape model. This study of form was a crucial aspect of the design process.

To accentuate the sensation of safety and security, the design incorporates an inward curvature. This, in turn, facilitates the creation of an 'enclosed' garden within an open landscape.

Figure in landscape
Figure in landscape
Figure in landscape
Figure in landscape
Experimenting colours and materials Model structure

EXPERIMENTING - COLOURS & MATERIALS

Various colours and materials were explored for this design to ensure it integrates seamlessly with the landscape. Simultaneously, it must maintain its distinctiveness. It should not be overly conspicuous and ought to possess a natural appearance.

Model structure Model structure

EXPERIMENTING - STRUCTURE

To minimise the impact on nature, the building is elevated, seemingly floating above the ground.

The two roofs are balanced with each other. They support one another and create a connection between the two parts of the building. A dynamic interplay occurs in the upper layer, which is unified by the continuous lower layer.

SECTION

Vertical section

LAYOUT

The building was to accommodate various research functions, such as an observatory, library, and laboratory. These functions are located in the western part of the design, allowing them to be somewhat separate from the domestic rooms.

The bedrooms are protected against the dune ridge, yet afford beautiful sea views. The entire kitchen and living room receive light from the east to the south-west throughout the day, and thanks to sliding doors, the indoors and outdoors can merge seamlessly. This flexibility allows for adaptation to various (weather) conditions.

FLOORPLAN GROUNDFLOOR

Floorplan groundfloor

FLOORPLAN FIRST FLOOR

Floorplan first floor

MODEL 1:100

Model 1:100 Model 1:100
Model 1:100 Model 1:100
Model 1:100

MODEL 1:33

Model 1:33 Model 1:33
Model 1:33 Model 1:33 Model 1:33
Model 1:33 Model 1:33 Model 1:33

OTHER PROJECTS

Rewilding Cities

Rewilding Cities

De Zonnehof

De Zonnehof

SC010 Rotterdam

SC010 Rotterdam

Back to top